CHAGRIN
D'ÉCOLE
Title _ Chagrin d'école
Period _ 2022
Location _ Macerata, Italy
Status _ 4th place, FUTURA - Two phased design competition
With _ AMAA office and Sinergo s.p.a

In the eternal contest between the expression of an identity and adaptation to the context, the project
accepts the commission's guidelines in an attempt to translate into architectural terms the figures and objectives of a new generation school building. Identity is expressed here
with the intention of ensuring a recognisable image for the building as a public building
related to the important institution-education, while shunning standardised symbolism and
homologated compositional languages.
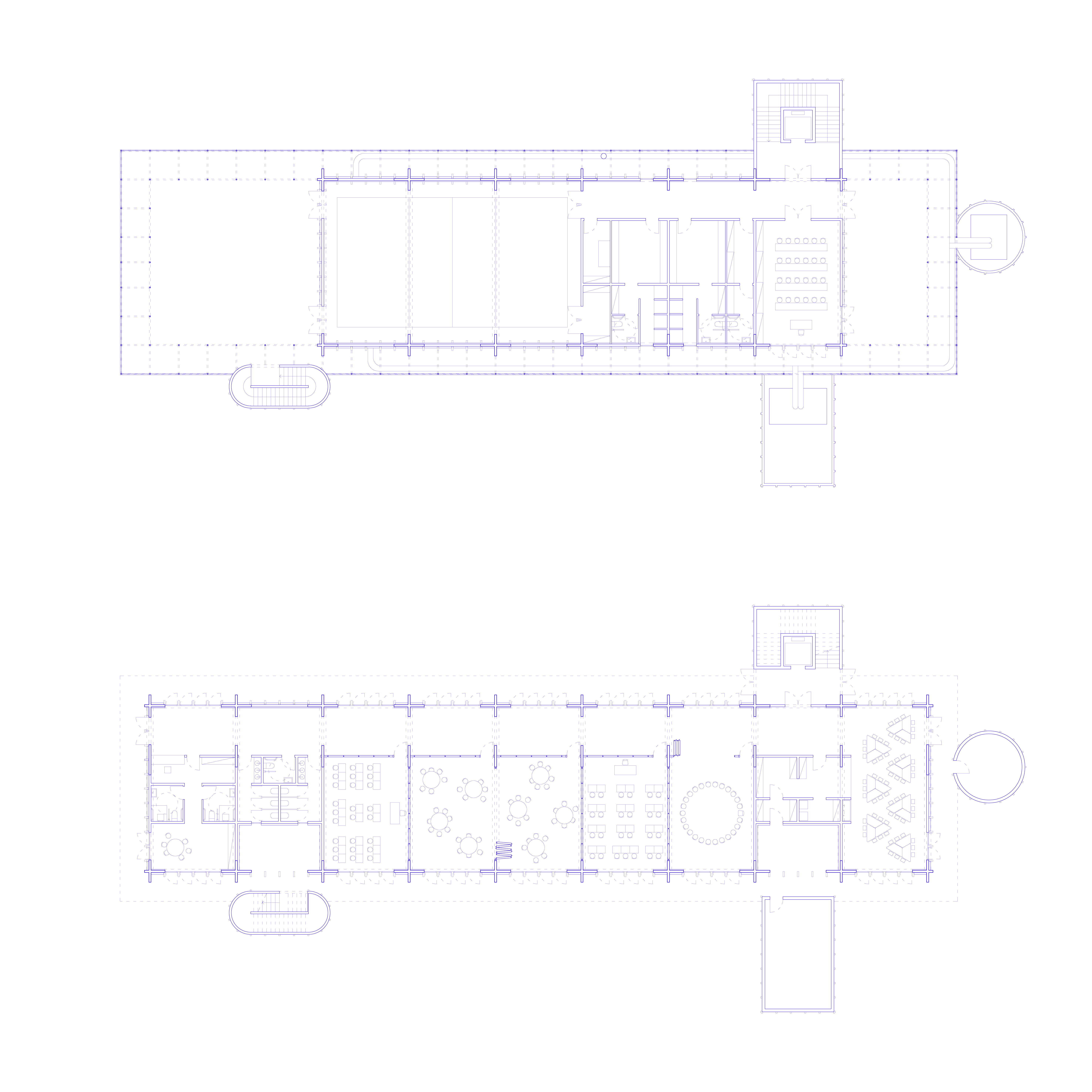
The plot has an articulated conformation in its perimeter and orography - non-linear - that
allows the identification of a hierarchy of spaces naturally facing a slight slope
in the ground attack and freer on the upper floors. The rectangular geometric imprint chosen
for the plan, therefore, contrasts with a greater articulation of the elements in the elevation, precisely because of this link with the territory and the extent of the surrounding buildings. It small- to medium-scale artefacts with which a dialogue is sought by attenuating the perception of the volume, which is extremely diaphanous.
The project moves from the archetypal idea of the tree house. A symbolism that
in the memory and imagination of the children (the school's main users) and that in one gesture brings together the two gesture unites the two pivotal elements of learning: the familiar, domestic environment of the house and the role of the tree.
of the house and the role of the tree as the fulcrum of the school institution.


A two-level artefact levels is thus grafted into the ground, identifying a light base on which the elements in the elevation, made with an exposed wooden frame, flanked only by the glass and metal mesh by the glass and metal mesh - the parapet of the terrace. This is an adaptation of traditional techniques, which are updated and transfigured according to the aesthetics of the contemporary aesthetics: a simple construction that works by gravity and provides for a progressive lightening of the elements moving upwards. The materials chosen are therefore sustainable from production to disposal and their use is proposed in a pedagogical sense by entrusting them with the ability to communicate their role in the construction. Everything should appear for what it is, both inside and outside the school building.

In a child's life, school represents in terms of time a second home. Starting from this reflection, the proposed architectural choices draw on everyday imagery and draw recognisable elements that can characterise the different areas of the building. The choice of
materials (the wood used for the structure, the cladding and the furniture components), brings the dimensions of the public building to the proportions and sensations of the home. These are experiences spatial experiences already inherent in the child's experience, which therefore become didactic tools to stimulate creativity, encourage the expression of personality and the learning of the rules of community life. Learning is therefore not limited to the mere space of the classroom, but freely encompasses every available surface. Even the boundary between inside and outside seems to dissolve: at the entrance level the volume is entirely traversable and potentially openable. A continuity is thus created between exterior and interior spaces, which proved to be essential in the last difficult years of the pandemic, and increasingly important at thepedagogical level. The orography of the area was the pretext to create and set up open-air rooms.


informal practice
︎ informal_practice / informalpractice.xyz@gmail.com
© INFORMALPRACTICE / Privacy Policy
Unless otherwise stated, all content on this website is the intellectual property of INFORMALPRACTICE and may not be used or reproduced without express consent.
Unless otherwise stated, all content on this website is the intellectual property of INFORMALPRACTICE and may not be used or reproduced without express consent.